Welkom op een plek waar natuur, design en familietijd moeiteloos samenkomen. Deze stijlvolle vakantiewoning in het rustige dorpje Ulicoten is ontworpen voor maximaal 8 gasten en is perfect voor families en vrienden die op zoek zijn naar ruimte, comfort en waardevolle tijd samen. Gelegen in een kleinschalig, exclusief vakantiepark, ver weg van het massatoerisme, biedt het een zeldzame balans tussen rust en samenzijn in het hart van het Brabantse platteland.
Omgeven door groen, gaat de woning dankzij het duurzame, modulaire ontwerp naadloos op in de natuurlijke omgeving. Gebouwd als een bijna energieneutrale vakantiewoning, weerspiegelt het een diep respect voor de natuur en biedt het tegelijkertijd moderne luxe. Warme, natuurlijke interieurs creëren een uitnodigende sfeer waar zowel volwassenen als kinderen zich direct thuis voelen. De open keuken is volledig uitgerust voor gezamenlijke maaltijden en ontspannen kookmomenten en loopt over in een lichte woon- en eetkamer met comfortabele zitgelegenheid en uitzicht op de buitenlucht. Met flexibele slaapmogelijkheden, waaronder gezinsvriendelijke slaapkamers, is deze woning ideaal voor meergeneratievakanties of vakanties met kinderen. Stap naar buiten en geniet van de frisse lucht, rustige ochtenden en lange avonden samen, terwijl kinderen veilig kunnen spelen en ontdekken.
Baarle-Nassau ligt op loopafstand en biedt winkels, cafés en een authentieke sfeer. De omliggende Kempen is ideaal voor fietsen, wandelen, natuurverkenning en dagtripjes naar charmante stadjes. Amsterdam en Brussel zijn beide gemakkelijk te bereiken. Dit vakantiehuis is perfect voor designbewuste reizigers die waarde hechten aan kwaliteit, gezinnen die op zoek zijn naar een rustige maar boeiende vakantie en iedereen die weer in contact wil komen met de natuur zonder in te leveren op comfort.
Lees meer
Vakantiehuis in Ulicoten voor 8 personen
"De Steppe 8 pax - 7"
vanaf € 160
per nacht
Gratis annuleren tot 43 dagen van tevoren
- Voor de annulering tot en met de 43ste dag voor de afgesproken aankomst: 0% van de huur
- In geval van annulering van 42 tot en met 29 dagen voor aankomst: 40% van de huur.
- In geval van annulering van 28 tot en met de laatste dag voor de overeengekomen huurperiode 90% van de huur
- 100% van het bedrag wordt in rekening gebracht voor latere annulering of niet-verschijnen.
Aankomst
Selecteer datum
Vertrek
Selecteer datum
Selecteer uw datums
Kies aankomst- en vertrekdatum om beschikbaarheid en prijzen te bekijken
Veelgestelde vragen
-
- Voor de annulering tot en met de 43ste dag voor de afgesproken aankomst: 0% van de huur - In geval van annulering van 42 tot en met 29 dagen voor aankomst: 40% van de huur. - In geval van annulering van 28 tot en met de laatste dag voor de overeengekomen huurperiode 90% van de huur- 100% van het bedrag wordt in rekening gebracht voor latere annulering of niet-verschijnen.
Veilig betalen met
iDEAL
Visa
Mastercard
PayPal
Bancontact
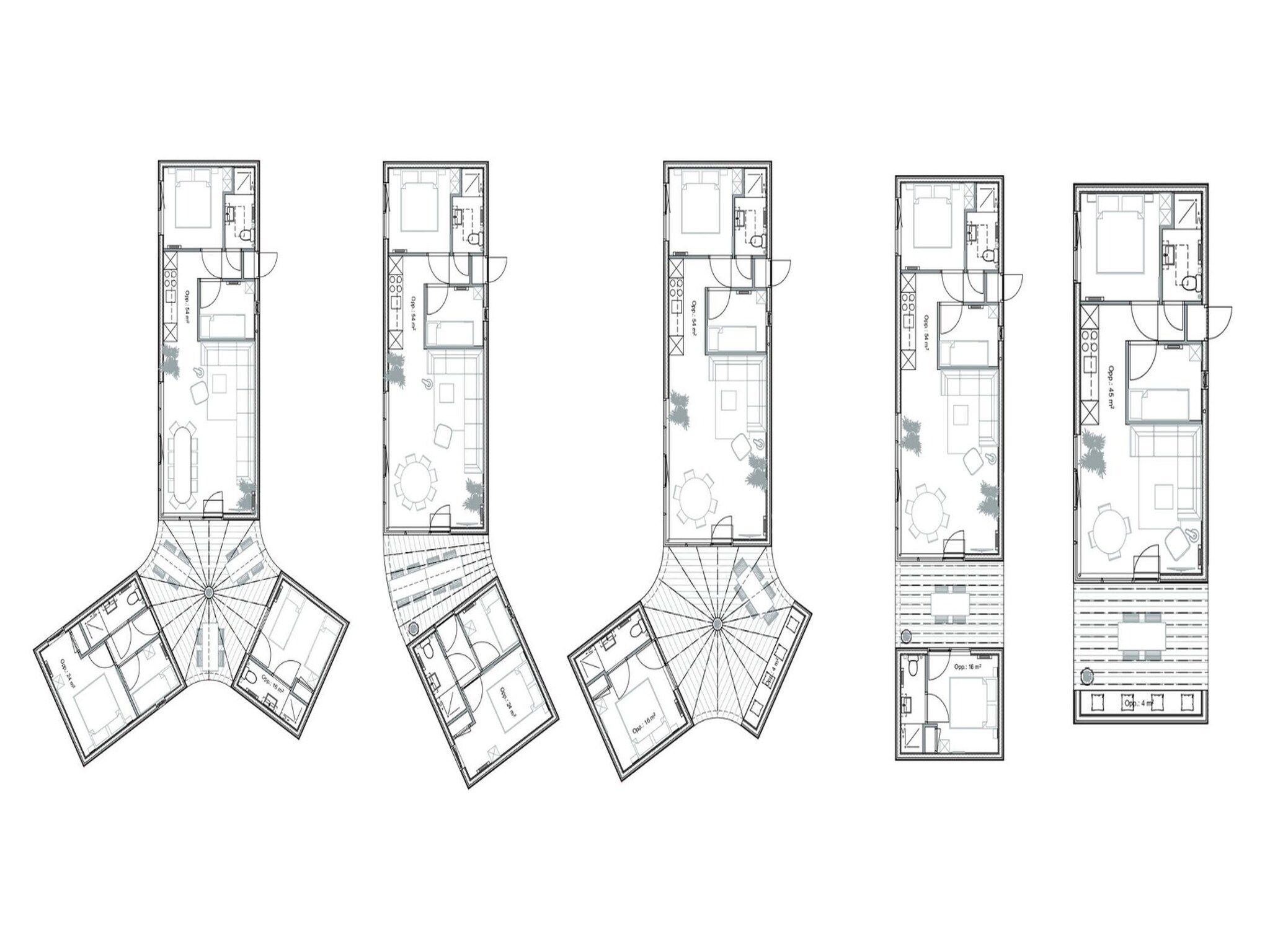
Indeling
Begane grond
open keuken:
waterkoker, fornuis, koffiezetapparaat, combimagnetron, koel-/vriescombinatie
woon/eetkamer:
TV, eettafel, zithoek
slaapkamer:
2-pers. bed of 2x1 pers. Bedden
slaapkamer:
stapelbed
badkamer:
douche, wastafel, toilet
veranda:
zithoek, fornuis
Algemeen: slaapkamer(stapelbed), slaapkamer met badkamer(2-pers. bed of 2x1 pers. Bedden, douche, wastafel, toilet), hottub, sauna
Voorzieningen
Keuken & Huishouden
- Vaatwasser
Afstanden
Meer
15,2 km
Bakkerij
3,5 km
Levensmiddelen
3,4 km
Bushalte
3,3 km
VVV
3,4 km
Kaart laden...
Legenda
Vakantiewoning
Uitjes
Water
Natuur
Cultuur
Entertainment
Gastenboek laden...
Meer vakantiehuizen ontdekken?
Bekijk alle accommodaties in Noord-Holland of vergelijkbare huizen voor 8 personen.