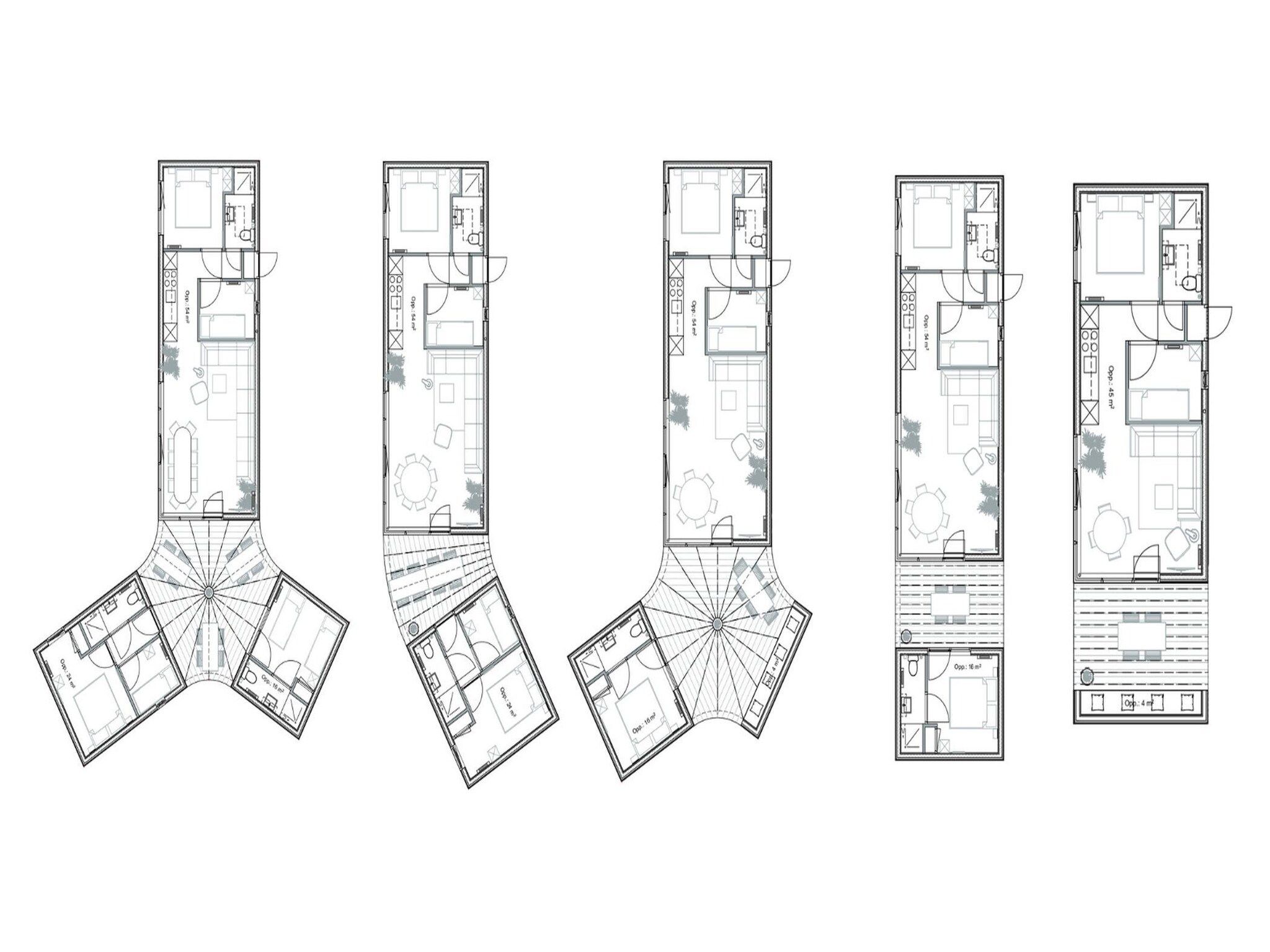
Familie Vakantiehuis
De Steppe 8 pax - 5 - hoofdafbeelding